Work
Studio
Contact
News
Work
Studio
Contact
News
Overview
Products
Workplace
Retail
Residential
Next project
Next project
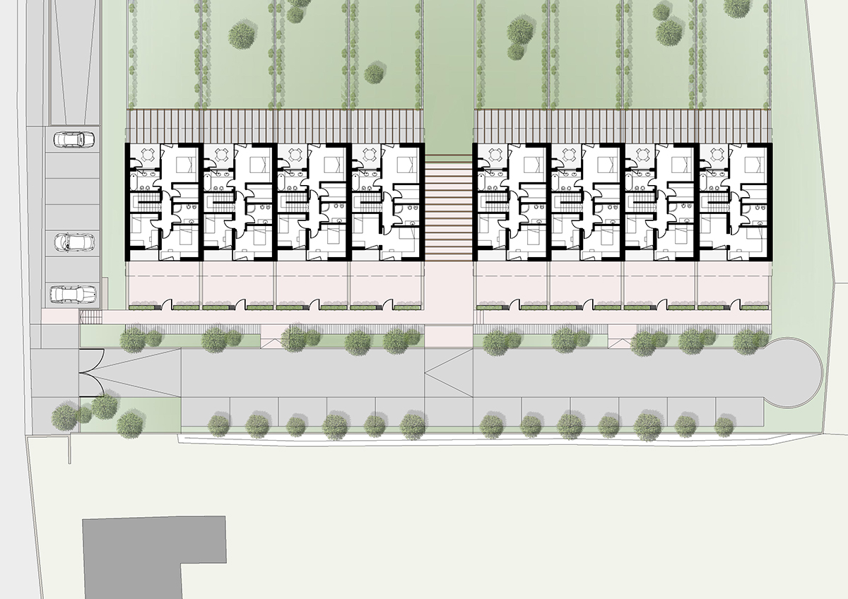
Bautec Housing, Vittorio Veneto, Italy 2000